Scheda cantiere
ZOGNO
Le Bohemien - Rif. 48
Caratteristiche
Un progetto residenziale esclusivo che trasforma uno spazio inutilizzato in quattro nuove abitazioni di qualità: un ampio trilocale e tre eleganti bilocali, tutti situati al terzo ed ultimo piano e serviti da ascensore. Il trilocale rappresenta la soluzione ideale per chi cerca ambienti generosi e ben distribuiti, con una luminosa zona giorno, due camere da letto, spazi accessori funzionali e due balconi soleggiati che ampliano la vivibilità dell’abitazione. I bilocali, moderni e accoglienti, sono invece pensati per offrire soluzioni versatili e funzionali, perfette sia come prima abitazione sia come investimento. Completano le proprietà le autorimesse al piano interrato che fanno parte dell’offerta di vendita.. Ogni unità è progettata con attenzione ai dettagli, alla luce naturale e alla qualità degli spazi, per offrire un’esperienza abitativa contemporanea, confortevole e di valore. Consegna prevista entro fine 2026.
Descrizione
Un intervento che unisce eleganza architettonica, innovazione tecnologica e qualità costruttiva. La riqualificazione del sottotetto dà vita a nuove abitazioni mansardate dal forte carattere, dove il fascino delle travi in legno a vista e delle arcate a botte si integra armoniosamente con soluzioni impiantistiche di ultima generazione. Ogni ambiente è stato progettato per offrire benessere abitativo e comfort quotidiano, grazie a sistemi ad alta efficienza energetica come il riscaldamento a pavimento con pompa di calore e serramenti ad elevato isolamento termico. Il risultato è un equilibrio perfetto tra estetica e prestazioni: spazi accoglienti, moderni e sostenibili, pensati per durare nel tempo e valorizzare ogni momento della vita domestica.
Posizione
Vivere nel centro del paese significa avere tutto a portata di mano, senza rinunciare alla tranquillità. L’intervento si inserisce in una posizione strategica, dove servizi, negozi, scuole e collegamenti sono facilmente raggiungibili anche a piedi, rendendo la quotidianità più semplice e piacevole. Il contesto è riservato e ben curato, ideale per chi desidera un equilibrio tra comodità e qualità della vita. Una location che offre il privilegio di vivere in un ambiente centrale, pratico e perfettamente integrato con il tessuto urbano e valorizza l’investimento anche dal punto di vista di messa a reddito, garantendo una proficua resa economica continuativa.
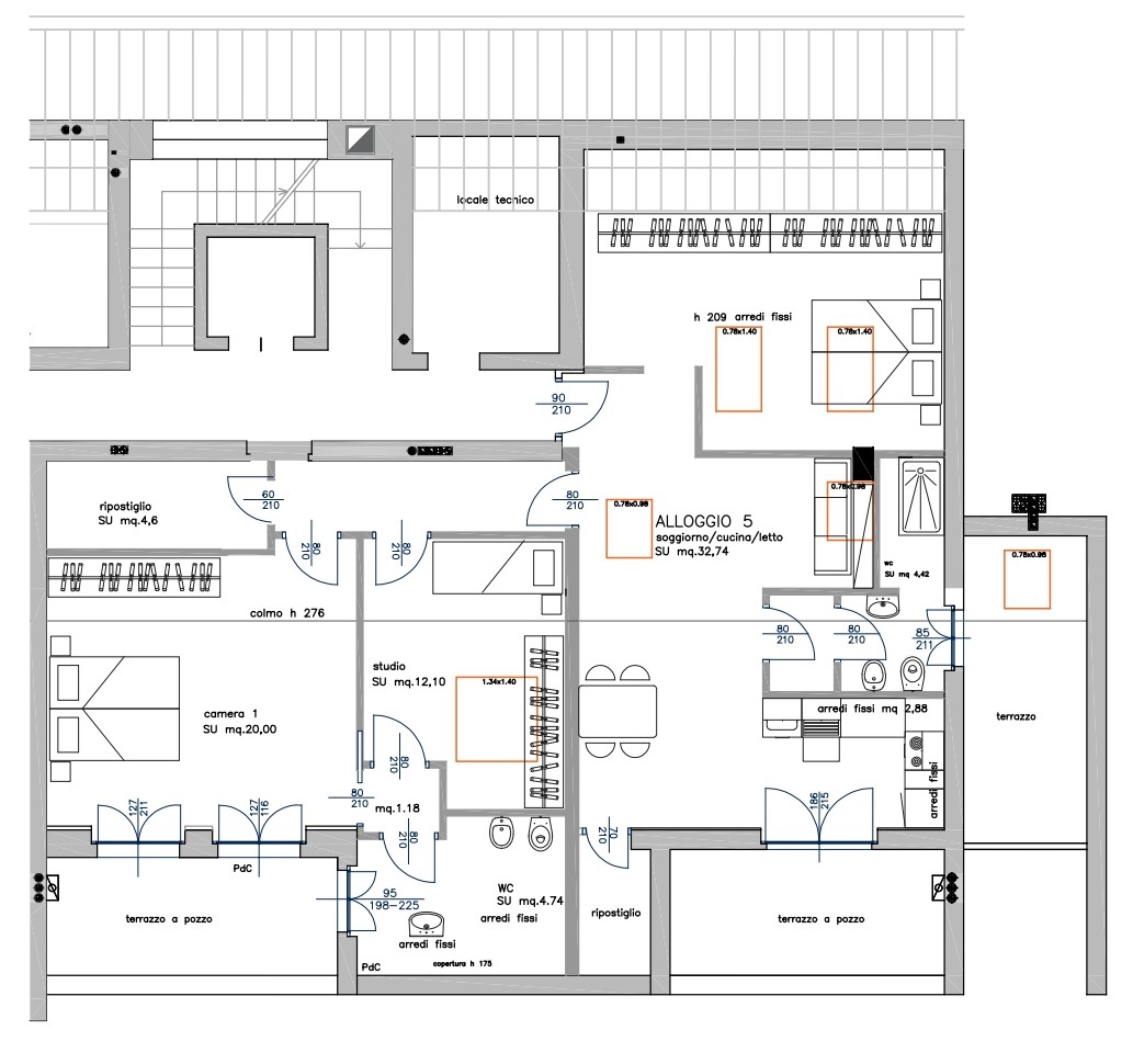
TIPOLOGIE DISPONIBILI
Clicca per ingrandire
BILOCALE
Clicca per ingrandire
TRILOCALE
Clicca per ingrandire
PENTALOCALE
OFFERTE DISPONIBILI
Zogno
(Valle Brembana Inferiore)
ESCLUSIVO TRILOCALE IN MANSARDA CON AUTORIMESSA. (rif. All.1) Nel cuore del paese, con tutti i ...
ID offerta: 13054
Metri m² 99
Prezzo: 215.000 Euro
Consulente: Piernando Gallo
Zogno
(Valle Brembana Inferiore)
ELEGANTE BILOCALE MANSARDATO DI NUOVA REALIZZAZIONE - ULTIMO PIANO CON ASCENSORE. (rif. All.2). ...
ID offerta: 13055
Metri m² 58
Prezzo: 130.000 Euro
Consulente: Piernando Gallo
Zogno
(Valle Brembana Inferiore)
SPAZIOSO BILOCALE MANSARDATO DI NUOVA COSTRUZIONE - CONFORT E FASCINO NEL CENTRO DEL PAESE (rif. Al...
ID offerta: 13056
Metri m² 61
Prezzo: 139.000 Euro
Consulente: Piernando Gallo
Zogno
(Valle Brembana Inferiore)
APPARTAMENTO IN MANSARDA DI NUOVA COSTRUZIONE - ULTIMO PIANO CON ASCENSORE (rif. All.4) Nel cen...
ID offerta: 13057
Metri m² 61
Prezzo: 139.000 Euro
Consulente: Piernando Gallo
BREMBANICA
Gallo & Partners Unipersonale s.r.l. - P.I. 04076640160
Tel. 035 543000 - info@brembanica.com
Privacy e termini di utilizzo