Mapello
(Provincia NordOvest Isola)
Trilocale

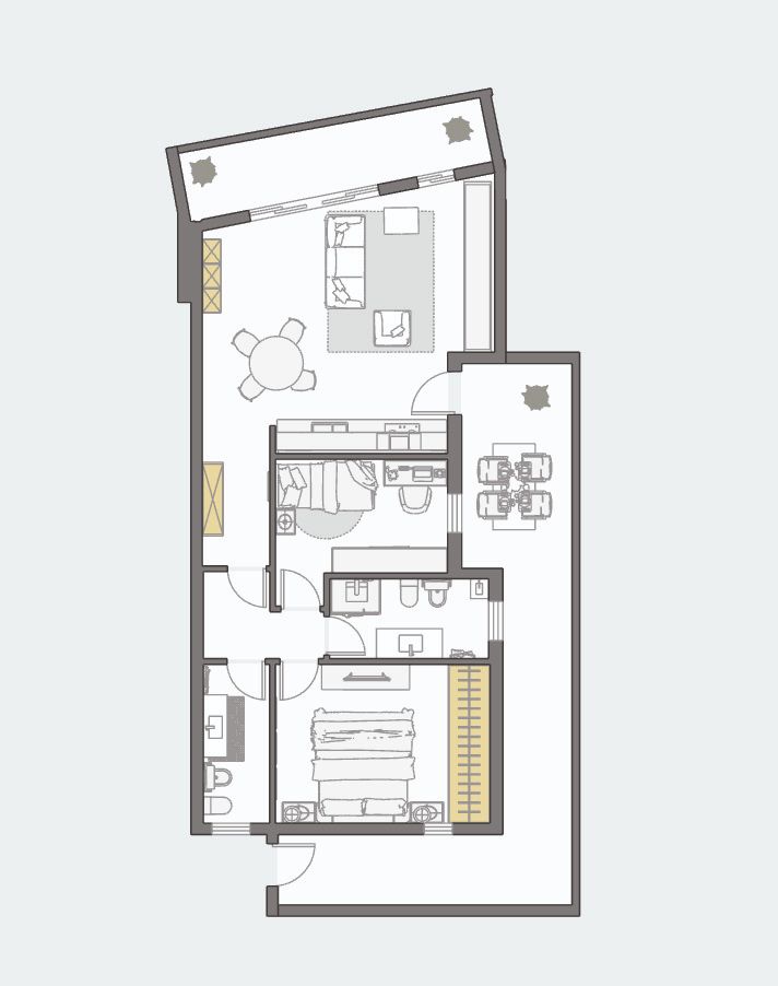
In una delle zone residenziali più tranquille e strategiche di Mapello, in via Scotti, sorgerà una nuova palazzina moderna e dal design raffinato, composta da sole 7 unità abitative distribuite su due piani. Un contesto raccolto e di qualità posto in posizione appartata su strada privata a fondo chiuso, ideale per chi desidera vivere in un ambiente tranquillo, sereno, ma perfettamente collegato: il centro del paese è a pochi passi e l’immediata vicinanza alla superstrada consente di raggiungere Bergamo in pochi minuti. L’appartamento proposto (U.03), al primo ed ultimo piano di superficie comm.le pari a circa mq.118, si distingue per la generosa metratura e per l’esposizione su tre lati, che garantisce ambienti luminosi e ariosi durante tutto l’arco della giornata. La palazzina sarà realizzata secondo le più recenti tendenze architettoniche, con linee pulite, materiali di buona qualità e soluzioni tecniche orientate al massimo comfort abitativo. Gli impianti saranno di ultima generazione: pompa di calore e riscaldamento a pavimento offriranno un’efficienza energetica elevata e un notevole contenimento dei consumi, assicurando allo stesso tempo una piacevole temperatura in ogni stagione. L’abitazione si apre su una grande balconata vivibile che funge anche da ingresso privato, anticipando l’atmosfera accogliente degli spazi interni. La zona giorno è ampia e moderna, con cucina a vista e grandi vetrate che si affacciano su un secondo terrazzo con vista aperta sul verde della campagna circostante. La zona notte comprende una confortevole camera matrimoniale, una cameretta e due bagni finestrati, uno dei quali predisposto come pratica lavanderia. Completano la proprietà una spaziosa autorimessa doppia in lunghezza al piano terra, facilmente accessibile e perfetta per chi necessita di ampi spazi di parcheggio e deposito, oltre una adiacente porzione di giardino di 26 mq, di pertinenza esclusiva. Un’abitazione pensata per chi cerca comfort, modernità e una qualità costruttiva elevata, in un contesto tranquillo e ben servito. PREVENDITA DI CANTIERE – MODALITA’ DI ESECUZIONE: l’intervento immobiliare in oggetto è attualmente in fase di prevendita, con raccolta prenotazioni aperta per la formazione del gruppo di acquirenti interessati. L’avvio dell’intervento è programmato solamente al raggiungimento di un prestabilito numero complessivo di adesioni. Durante questa fase: • La prenotazione è completamente non vincolante, in quanto è senza obblighi contrattuali immediati. • Eventuali depositi versati a titolo di prenotazione sono interamente rimborsabili, questo fino al raggiungimento della soglia di adesioni prestabilita. • Maggiori e più dettagliate informazioni sono disponibili contattandoci direttamente presso i nostri uffici al 035-543000.

€ 285.000

CARATTERISTICHE DELL'OFFERTA
Riferimento 13035
Categoria Immobili residenziali
Settore residenziale
Esterni Terrazzo
Anno costruzione
Metri quadri 118
Classe energetica A3 - 00  m2a
Classe di Rendimento Energetico è un indice delle performance termiche che indica i livelli di riscaldamento e raffrescamento richiesti in inverno ed in estate. Gli immobili di classe A o B garantiscono maggior comfort e sono i più efficienti in termini di consumi di energia.
Piano 1
Posizione Servita
Accessibilità strada privata
Riscaldamento auton. a pavimento
Grado costruzione Medie Finiture
Arredato no
Locali Bagni Box Posti auto
3 2 1 2
Consulente Piernando Gallo
Assistente Nessun assistente

RICHIEDI INFORMAZIONI
BREMBANICA
Gallo & Partners Unipersonale s.r.l. - P.I. 04076640160
Tel. 035 543000 - info@brembanica.com
Privacy e termini di utilizzo