Villa d'Alme'
(Interland Nord Ovest)
Trilocale

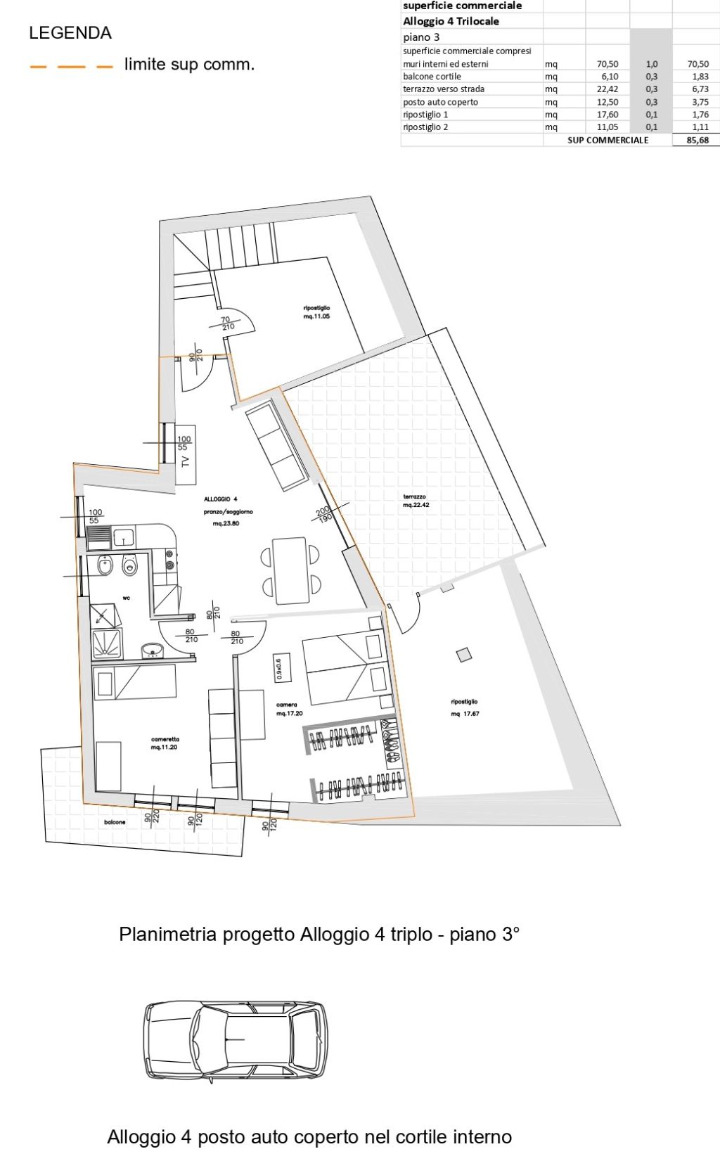
Nel suggestivo contesto del borgo storico di Villa d'Almè, proponiamo in vendita una caratteristica mansarda situata al terzo ed ultimo piano di un affascinante edificio d’epoca oggetto di riqualificazione. Questa soluzione si distingue per il suo elemento più esclusivo: un ampio terrazzo panoramico di forma quadrata, raro per questa tipologia, paragonabile per vivibilità a quello di un attico. Uno spazio esterno davvero generoso, ideale per prendere il sole, organizzare pranzi e cene all’aperto o semplicemente rilassarsi godendo di una vista aperta e suggestiva che spazia dalle magnifiche vette prealpine ai dolci colli verdi circostanti. Internamente l’appartamento si sviluppa come un comodo trilocale, caratterizzato da ambienti ben distribuiti e funzionali. L’ingresso si apre su un accogliente soggiorno con angolo cottura, uno spazio luminoso e conviviale con una grande vetrata sul terrazzo. La zona notte comprende due spaziose camere da letto, ideali sia per una famiglia che per chi desidera ambienti versatili da adibire anche a studio o zona ospiti. A completare l’abitazione, un bagno ben organizzato, due pratici e ampi ripostigli — particolarmente utili in una soluzione mansardata — e un ulteriore balcone esposto a sud, che garantisce ottima luminosità durante tutta la giornata. L’immobile sarà completamente ristrutturato con finiture moderne e impianti di ultima generazione: riscaldamento a pavimento, sistema autonomo in pompa di calore e serramenti ad alta efficienza energetica, per assicurare comfort abitativo e contenimento dei consumi. La consegna è prevista per metà 2027. Completa la proprietà un posto auto coperto ad uso esclusivo, situato nella riservata corte interna dello stabile. Una soluzione unica, perfetta per chi desidera vivere in un ambiente esclusivo dal fascino autentico, arricchito da uno spazio esterno raro e vivibile e da una vista aperta e impagabile.

€ 160.000

CARATTERISTICHE DELL'OFFERTA
Riferimento 13064
Categoria Immobili residenziali
Settore residenziale
Esterni Terrazzo
Anno costruzione
Metri quadri 86
Classe energetica A2 - 000  m2a
Classe di Rendimento Energetico è un indice delle performance termiche che indica i livelli di riscaldamento e raffrescamento richiesti in inverno ed in estate. Gli immobili di classe A o B garantiscono maggior comfort e sono i più efficienti in termini di consumi di energia.
Piano 3
Posizione borgo storico
Accessibilità Strada pubblica
Riscaldamento auton. a pavimento
Grado costruzione Medie Finiture
Arredato no
Locali Bagni Box Posti auto
3 1 0 1
Consulente Piernando Gallo
Assistente Nessun assistente

RICHIEDI INFORMAZIONI
BREMBANICA
Gallo & Partners Unipersonale s.r.l. - P.I. 04076640160
Tel. 035 543000 - info@brembanica.com
Privacy e termini di utilizzo